Lot 5231 Byron Ave, Newport
Build Time
Base: 12.08.20
PC: 13.11.20
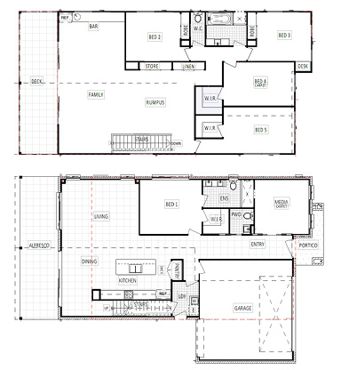
Building Size
Dwelling
Living Lower: 123.08 m2
Living Upper: 146.87 m2
Garage: 42.20 m2
Portico: 4.74 m2
Alfresco: 23.20 m2
Subtotal: 363.29 m2
Enquire today
This site is protected by reCAPTCHA and the Google Privacy Policy and Terms of Service apply.


